Quadrilocale in vendita

Airola, Via bagnara
€ 155.000
4 locali 4 locali
130 Mq 130 Mq
2 bagni 2 bagni

Quadrilocale in vendita

Airola, Via bagnara

Descrizione annuncio

Airola - In signorile parco residenziale, di recentissima costruzione, situato in zona molto centrale di Airola.

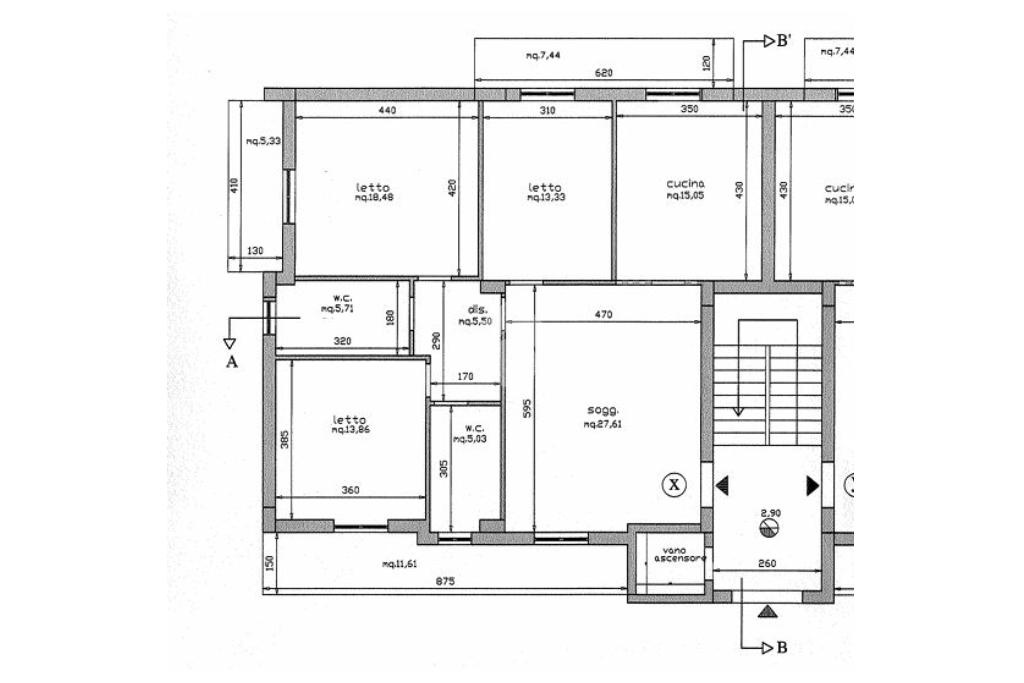
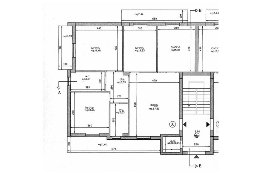
Proponiamo appartamento sito al 3° ed ultimo piano servito da ascensore e composto da salone, 3 camere da letto, cucina abitabile e 2 bagni. L'appartamento è completo di garage oltre a possibilità di parcheggio negli spazi condominiali.
L'appartamento è in fase di ultimazione, pertanto gli aspiranti acquirenti hanno la possibilità di scegliere il tipo di rifinitura di rivestimenti ed accessori.

Mostra tutto

Nelle vicinanze

Trasporto pubblico Trasporto pubblico
Arpaia - Airola - Sant'Agata
Arpaia - Airola - Sant'Agata
2,8 Km
Scuole Scuole
Scuole
230 m
Scuola elementare Padre Pio
370 m
Istituto di Istruzione Superiore "A.Lombardi"
400 m
Istituto Professionale per i Servizi Commerciali
1,0 Km
Polo scolastico "Francesco De Sanctis"
1,6 Km
Farmacia Farmacia
Farmacia Iglio
450 m
Farmacia Abbatiello Giulia
700 m
Farmacia
1,1 Km
Ospedali Ospedali
Guardia Medica
270 m
Supermercati Supermercati
Conad
570 m
Spendibene
650 m
Decò Maxistore
2,1 Km
Negozi Negozi
Panetteria del corso
380 m
Mini Market
520 m
Bar Bar
Bar
260 m
Tropical bar
380 m
Meeting cafè
420 m
Caffè Vanvitelli
480 m
Caffetteria del centro
590 m
Ristoranti Ristoranti
O' Luzzanese
250 m
Ristoranti
260 m
Antovin
470 m
Pizza E Contorni
760 m
Peccati di gola
1,3 Km
Mostra tutto

Caratteristiche

Rif.:
60829125
Piano:
3 di 3 con ascensore (Piano alto)
Box:
2
Posti auto:
1
Balconi:
3
Camere da letto:
3
Mostra tutto
Prezzo Prezzo
€ 155.000
Rata mutuo Rata mutuo
€ 736 / mese
Spese annue Spese annue
€ 200
Proponi il tuo prezzoProponi il tuo prezzo

Classe Energetica

Questo immobile è esente da classe energetica
Anno di costruzione:
2015
Riscaldamento:
Autonomo
Tipo impianto:
A radiatori
Tipo alimentazione:
Metano

Ti interessa visionare l'immobile?

Fissa un appuntamento  Fissa un appuntamento

Richiedi informazioni

Clicca su Leggi per aprire l'informativa
* Questi campi sono obbligatori

Calcola il tuo mutuo

Semplice e senza impegno
Anticipo

( % )
Mutuo

( % )

pochi semplici passi

inserisci i tuoi dati
Questionario completato
Grazie per aver richiesto un appuntamento senza impegno con un nostro Consulente del Credito e Assicurativo.

Hai inserito correttamente tutti i dati necessari e a breve riceverai una e-mail con un link da convalidare per inviare i tuoi dati.
Affiliato
Studio Airola Srl
Via G. Matteotti, 11 82011 Airola (BN)

Il nostro staff


  • Marco Onofrio
    Affiliato

  • Elisabetta Petruzzelli
    Responsabile
Via G. Matteotti, 11 82011 Airola (BN)
Zona: Airola-Moiano-Bucciano
Mostra su mappa
Orari: lunedi-venerdi 09.00-13.00 16.00-20.00 - sabato 09.00-13.00
Affiliato
Studio Airola Srl
Via G. Matteotti, 11 82011 Airola (BN)

2026 Tecnocasa Franchising S.p.A. - P. IVA 08365160152 - Via Monte Bianco 60/A 20089 Rozzano (MI). Ogni agenzia ha un proprio titolare ed è autonoma. Privacy policy | Policy utilizzo | Cookie policy